Escape to your own slice of wilderness. For instance, the Remote Ranch from Buffalo Modular offers a stunning prefab ranch home. It suits off-grid living perfectly. Moreover, it connects you seamlessly to nature. This 1,500 square foot modular ranch home blends modern minimalism with rugged functionality. As a result, it appeals to adventurers, retirees, or those seeking a serene retreat. Therefore, if you’re building a custom modular home in Buffalo, the Finger Lakes, the Adirondacks, or the Hudson Valley, this design fits ideally. In addition, it provides expansive views, smart energy efficiency, and easy customization for your remote lifestyle.
Spacious and Functional Layout
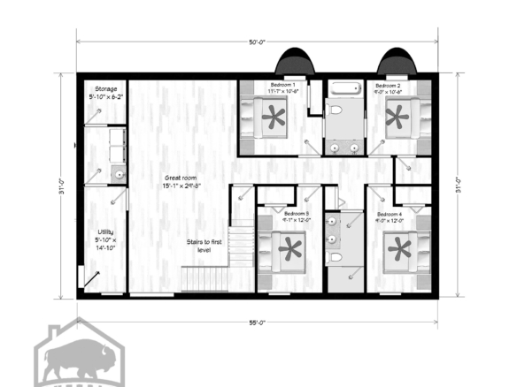
Imagine waking to sunrises from your elevated deck. Then, sip coffee in the open-concept great room. Natural light pours in through floor-to-ceiling windows. At 1,500 square feet, the single-level ranch layout shines brightly. For example, it includes a fully finished first floor built off-site in our factory. This ensures precision and quality every time. Additionally, an optional basement adds another 1,500 square feet. Consequently, you can finish it on-site later for storage or guest space.
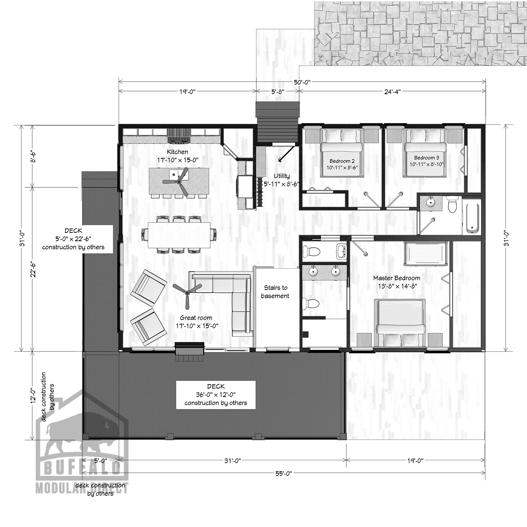
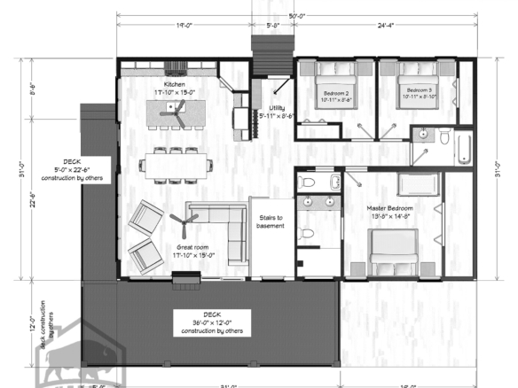
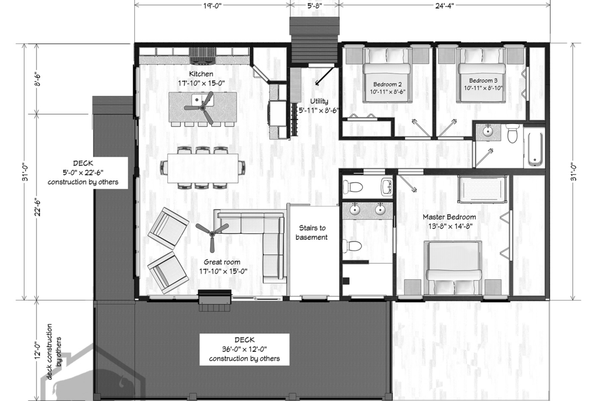
The layout offers 3 bedrooms and 2.5 bathrooms on the main level. Thus, this gives ample room for family or guests. Besides, it supports a home office for remote workers effectively. For instance, the master suite features a spacious 13′ x 14′ layout. It comes with an en-suite bath, of course. Meanwhile, two additional bedrooms measure around 11′ x 16′ each. They create cozy spots for kids or visitors, indeed.
Heart of the Home
The great room measures a generous 17′ x 15′. It flows smoothly into a sleek kitchen. Furthermore, the kitchen includes island seating and high-end appliances. All this wraps in durable, low-maintenance black cedar siding. Therefore, this siding withstands harsh winters easily.
What makes the Remote Ranch stand out? First, it’s built for resilience and sustainability. Our modular construction uses wood-framed 2×6 walls. It creates a tight building envelope. As such, this allows enhanced insulation in walls, floors, and ceilings. In turn, energy bills drop by up to 40%. Hence, it’s ideal for off-grid solar setups or remote spots with limited utilities.
Plus, the oversized deck measures up to 36′ x 12′. You can customize it yourself, naturally. It extends living space outdoors. Cable railings provide unobstructed views of forests and meadows, too.
Key Features and Benefits
Add optional features to suit your needs. For example, choose a wraparound porch. Or, opt for energy-efficient geothermal heating. You could also add smart home integration. These options tailor your modular ranch home perfectly, after all.
Why Choose the Remote Ranch from Buffalo Modular?
- Rapid Build Time: Factory precision delivers and assembles in 6-8 weeks. It’s faster than traditional builds, certainly. Yet, it never skimps on quality.
- Eco-Friendly Design: Sustainable materials shine brightly. Off-grid-ready features appeal to green homeowners in rural New York, moreover.
- Versatile Layout: The open floor plan adapts well. It suits multi-generational living or vacation getaways. Plus, year-round remote work hubs fit easily. The basement’s 1,500 sq ft expands for future needs, accordingly.
- Affordable Customization: Begin with the base model. Then, upgrade luxury finishes or expanded decking. Add an integrated garage too—all at competitive prices.
Customize Your Prefab Remote Ranch
Make it yours with our expert team. Select sleek black exteriors. Or, go for warm wood accents. Integrate smart tech for voice-controlled lighting. Finish the basement’s extra 1,500 square feet on-site. Turn it into a recreation area, home gym, or media room. We manage permits, site prep, and delivery across Buffalo and beyond. This keeps the process stress-free, without a doubt.
Building in Buffalo and Beyond
This home thrives in the Adirondacks’ rugged terrain. Or, it fits the Finger Lakes’ peaceful valleys. It meets strict New York building codes. At the same time, it embraces the region’s natural beauty. Ultimately, it’s more than a home. It’s your gateway to untamed freedom, surely.
Ready to claim your spot? Contact Buffalo Modular today. Explore the Remote Ranch now. Let’s design your custom modular ranch home. Turn remote dreams into reality. Schedule a free consultation!